Quadrilocale in vendita

Roma, Via pozzobonelli - Quarto Miglio
€ 350.000
4 locali 4 locali
125 Mq 125 Mq
1 bagno 1 bagno

Quadrilocale in vendita

Roma, Via pozzobonelli - Quarto Miglio

Descrizione annuncio

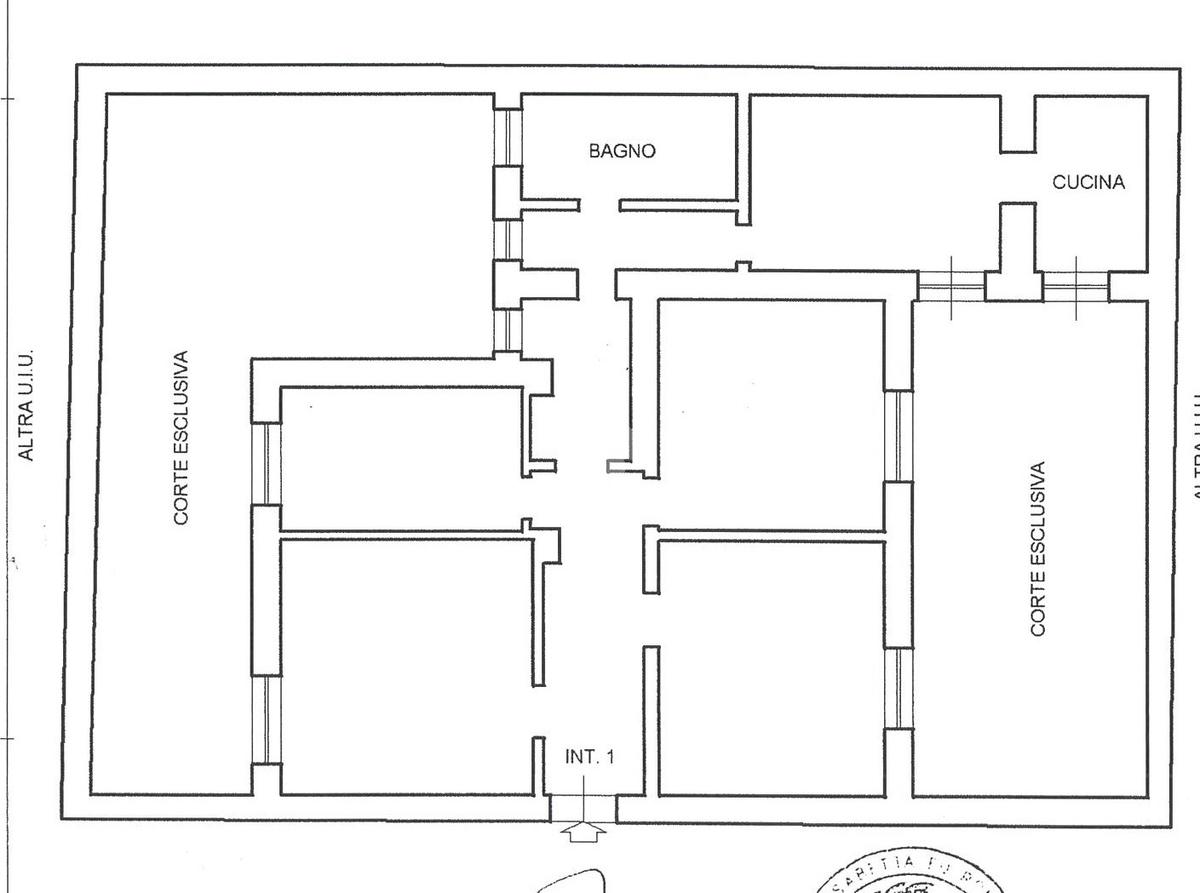
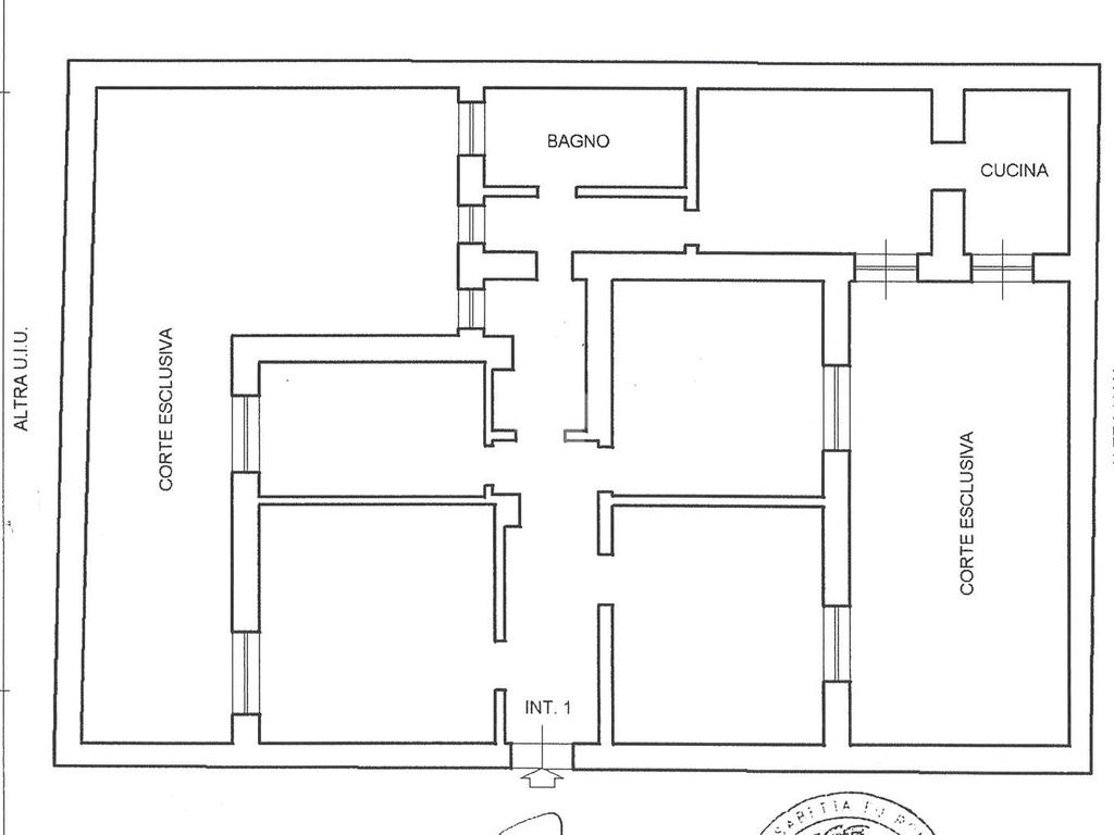
Appartamento con entrata indipendente nel cuore del quartiere e vicino a tutti i servizi. Attualmente l'immobile è composto da : ingresso, soggiorno, 2 camere da letto, cameretta, cucina con tinello, bagno e 2 giardini mattonati. Riscaldamento autonomo.

Il quartiere situato tra il parco degli acquedotti e il parco dell'appia antica mantiene la vivibilità di un paese dove le persone e famiglie si conoscono e incrociano le rispettive quotidianità nel rispetto reciproco. Gli edifici che raggiungono al massimo il terzo piano, garantiscono una ridotta densità abitativa che favorisce la dimensione umana dello stile di vita della zona, trasformandola in quella che è possibile definire un'isola verde a due passi (8km) dal centro. La presenza di tutti i servizi, di scuole e negozi a conduzione familiare assicura, laddove desiderato una piena autonomia e comodità negli spostamenti ai residenti offrendo la possibilità di una vita tranquilla e lontana dallo spostamenti verso San Giovanni, Tuscolana, il Centro e l'Eur sono garantiti dalle linee di bus che attraverso le arterie rappresentate dalla via appia, appia pignatelli, tor carbone. Vivere in questo angolo di Roma godendo della prossimità al Centro e alle principali zone commerciali , lontano dalle dinamiche caotiche della città in un ambiente verdeggiante , rappresenta la scelta di uno stile di vita improntato sulla qualità.

Mostra tutto

Nelle vicinanze

Trasporto pubblico Trasporto pubblico
Giulio Agricola
Giulio Agricola
1,9 Km
Lucio Sestio
Lucio Sestio
2,0 Km
Capannelle
Capannelle
2,2 Km
Regilla/Quarto Miglio
Regilla/Quarto Miglio
80 m
S. Tarcisio/S. Carlo da Sezze
S. Tarcisio/S. Carlo da Sezze
130 m
Ricariche auto elettriche Ricariche auto elettriche
Eneldrive Cinecittà
2,0 Km
Scuole Scuole
Scuole
210 m
Liceo Artistico Statale
700 m
Montessori - Via Lemonia
1,3 Km
Scuola Elementare Statale Don Filippo Rinaldi con annessa scuola materna
1,3 Km
Scuola Pubblica Materna Salvo D'acquisto
1,4 Km
Farmacia Farmacia
Farmacia Giovanni XXIII
100 m
Farmacia Don Bosco
140 m
Parafarmacia Conad
340 m
Farmacia
1,1 Km
Farmacia Statuario
1,3 Km
Ospedali Ospedali
NCL
2,6 Km
Farmacia Berna
2,7 Km
Fondazione Santa Lucia
2,8 Km
Supermercati Supermercati
Più Bio
240 m
Conad
340 m
Simply Sma
400 m
Crai
480 m
Tadis
1,2 Km
Negozi Negozi
Nazareno G
1,5 Km
Cotton Junior
1,7 Km
Club55
1,7 Km
Specialità Alimentari Salvatori
1,8 Km
Piccolo Mondo
1,8 Km
Bar Bar
Caffé Spartaco
1,8 Km
il Mago del cappuccino
1,8 Km
American bar
1,8 Km
Bar D'Amico
1,9 Km
Bar
1,9 Km
Ristoranti Ristoranti
Lunadue
290 m
La Taverna del Parco
310 m
La Taverna della Pizza
340 m
Ristorante Appio Claudio
420 m
America Graffiti
430 m
Mostra tutto

Caratteristiche

Rif.:
61128816
Piano:
Basso di 3
Totale piani:
3
Camere da letto:
3
Arredamento:
Assente
Condizionamento:
Autonomo
Mostra tutto
Prezzo Prezzo
€ 350.000
Rata mutuo Rata mutuo
€ 1.649 / mese
Proponi il tuo prezzoProponi il tuo prezzo

Classe Energetica

G
G
G
G
G
G
G
G
G
EP invernale del fabbricato:
EP estiva del fabbricato:
Anno di costruzione:
1952
Riscaldamento:
Autonomo
Tipo impianto:
A radiatori
Tipo alimentazione:
Metano

Ti interessa visionare l'immobile?

Fissa un appuntamento  Fissa un appuntamento

Richiedi informazioni

Clicca su Leggi per aprire l'informativa
* Questi campi sono obbligatori

Calcola il tuo mutuo

Semplice e senza impegno
Anticipo

( % )
Mutuo

( % )

pochi semplici passi

inserisci i tuoi dati
Questionario completato
Grazie per aver richiesto un appuntamento senza impegno con un nostro Consulente del Credito e Assicurativo.

Hai inserito correttamente tutti i dati necessari e a breve riceverai una e-mail con un link da convalidare per inviare i tuoi dati.
Affiliato
Studio Quarto Miglio Srl
Largo Padre Leonardo Bello , 10 00178 Roma (RM)

Il nostro staff


  • Nazzareno Marco Zazza
    Affiliato

  • Monica Marzola
    Responsabile

  • Daniel Rossi
    Responsabile
Largo Padre Leonardo Bello , 10 00178 Roma (RM)
Zona: Quarto Miglio-Statuario-Capannelle-Appia-Pignatelli
Mostra su mappa
Orari: dal lunedì al venerdì:9:00-13:00/15:30-20:00 Sabato:9:00-13:00/15.30-19.00
Affiliato
Studio Quarto Miglio Srl
Largo Padre Leonardo Bello , 10 00178 Roma (RM)

2026 Tecnocasa Franchising S.p.A. - P. IVA 08365160152 - Via Monte Bianco 60/A 20089 Rozzano (MI). Ogni agenzia ha un proprio titolare ed è autonoma. Privacy policy | Policy utilizzo | Cookie policy